小柴胡電子定量秤,上海鑄衡是專業生產和銷售電子定量秤的廠家。下面介紹的這款電子定量秤是我司熱銷產品。鑄衡電子定量秤數字顯示簡便直觀,包裝規格連續可調,工作狀態任意變換,操作非常簡單。鑄衡電子定量秤是您理想中的選擇!
電子定量秤適用范圍:
肥料、農化、飼料、化工原料、種子、大米、制糖等行業中流動性較好的晶體、顆粒、松散狀、小片狀物料高速定量分裝。
電子定量秤計量參數:
單斗稱量范圍:10-60kg
電子定量秤驅動方式:氣動
稱量精度:±0.1%-0.2%
電子定量秤功率電流:6 kw/16A
氣源壓力:0.36Mpa
電子定量秤稱量方式:傳感器
單秤斗容積: 92L
電子定量秤料斗形式:懸掛式
電子定量秤頻率/電壓: 50HZ 60HZ/220V 380V
電子定量秤供電方式:三相五線

電子定量秤產品特點:
1:采用多級引程給料機構,使稱量范圍變廣,可保證最大或最小稱量值時的速度和精度;
2:稱重系統采用PLC控制和按防塵、防水、防腐的要求設計;
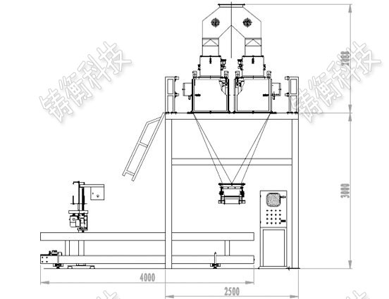
3:該機組由全自動稱量機、輸送機、縫包機、提升機、自動控制箱構成;
4:選購裝置:多種裝置自由選購(輸送機、縫包機、氣泵。)
電子定量秤圖片:

我司申明
1.我司所售產品均為原廠原包裝的全新正品!
2.有保修(我司所售的每一款產品,一年保修,終身維修。)產品售出時我們都會檢查或試機,出現質量問題的可能性很小,返修率低。)
3.所有產品均支持支付寶付款!請放心選購!
4.歡迎批量訂貨!量大從優!
熱門點擊:金華三角袋茶葉包裝機